The plans are out for bids, which means that hopefully we’ll be making minimal changes at this point. We had been going back and forth with the builder on the plans, and finally decided to go back to plans that we had seen a few weeks ago and just work with those.
We will be making a few small changes during the build, like moving the covered porch from the back of the house to side, but this is 99.5% of what we’ll build. I’m also not a fan of the round window in the front. I think it should be a square.
The design is from a timber and log design company called Moss Creek. We’re on the very small side of what they do, but it’s fun to look at their site for ideas.
Here’s the front elevation:
Here’s a color rendition of the front:
And here’s a similar one that was built in North Carolina. This one is reversed, but it does have a side covered porch. The exterior is also different than what we’re using. Where this one is board and batten, we’ll have log. So, our house will be more brown than this, and I don’t anticipate any red windows. I do give them points for keeping the stone piers on the porch square and not building “ugg boots” like the one you’ll see below. Square houses should have square piers, which also means they should have square windows. So just imagine this house mirrored, brown, and with a square window.
The rear elevation is exact, except the porch will be off the left.
Here’s the non-porch side.
This house, built somewhere up North, is oriented the same way as ours, and they also added a side covered porch. They lose points for the porch piers and siding, but it was a good effort.
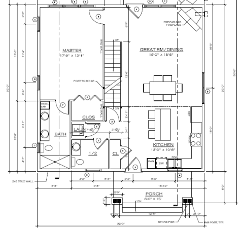
The first floor has a half bath again. I toyed with opening up the entire space where there’s a 1/2 bath, laundry, and closet, but it ended up being an awkward amount of space that wasn’t very usable. I also thought about making this space an office, but the view would be up the hill towards the driveway. A window there would be the worst view in the house. This is relative, of course, but I think the basement will have a better spot with a view of the river. The loft will likely be a great spot, too.
The other option was using all of that space to make a massive bathroom. Our previous house had a bathroom and closet that were almost as large as our current apartment. I’m not exaggerating, the previous owners built an addition just for this bathroom. It was obnoxious and inefficient, and almost made me not buy the house in the first place. So, after that experience, we’ve opted to keep the bathroom a normal size. The second picture below is of the master bath in the one that was already built, and as you can see, it has plenty of space. I don’t think an average sized american would fit into the tub those people have, but I guess they were going for looks over function.
There were two things I wanted to work into this house that I finally figured out: a loft and barn doors. We found a way to do both with the second bedroom on the upper level. The room labeled “bedroom 3” below will be open to the great room, so it will be loft space. When all of our friends stay over, though, and we need to use it as a bedroom, there’s barn doors to close off the room for privacy.
Looking up from the great room, this is what the doors look like:
Here’s the loft with the doors open:
And the doors closed:






















